Strona tymczasowo niedostępna...

Świetnie zlokalizowana działka usługowa - Zabawa

Działka (Usługowa) na sprzedaż
1 100 000,00 PLN , Pow. 1 450 m2
Drukuj ofertę
Drukuj ofertę
Typ nieruchomości:
Działka
Powierzchnia:
1 450 m2
Typ transakcji:
sprzedaż
Lokalizacja:
Zabawa
Numer oferty:
PNO924778
Cena za m2:
758,62 PLN
BEZ PROWIZJI OD KUPUJĄCYCH

Na sprzedaż działka usługowa o powierzchni ok. 1450 m² (14,5 ara) położona w centrum miejscowości Zabawa, na obrzeżach Wieliczki. Nieruchomość znajduje się w drugiej linii zabudowy przy drodze wojewódzkiej nr 964, będącej główną trasą łączącą Wieliczkę z Niepołomicami.
To bardzo atrakcyjna lokalizacja dla działalności usługowej - w najbliższym otoczeniu znajduje się gęsta zabudowa mieszkaniowa jednorodzinna oraz wielorodzinna, co zapewnia duży potencjał klientów dla przyszłej inwestycji. Sąsiedztwo ruchliwej, przelotowej drogi stwarza dodatkowe możliwości wykorzystania.

Najważniejsze informacje
✔ powierzchnia działki: ok. 1450 m²
✔ teren płaski i łatwy do zagospodarowania
✔ działka przylega z dwóch stron do asfaltowej drogi gminnej
✔ wygodny dojazd oraz możliwość komfortowej organizacji wjazdu i wyjazdu
✔ obecnie wykonany jeden wjazd na działkę
✔ wszystkie media na działce - przyłącza są już wykonane: prąd, woda, kanalizacja, sieć teleinformatyczna.

Media nie kolidują z ewentualną przyszłą zabudową działki.
Na działce znajdują się obecnie:
- budynek mieszkalny o powierzchni zabudowy ok. 95 m²
- dwa budynki pomocnicze o powierzchni zabudowy ok. 39 m² oraz 15 m²

Możliwości inwestycyjne
Działka objęta jest Miejscowym Planem Zagospodarowania Przestrzennego gminy Wieliczka i oznaczona symbolem U - tereny zabudowy usługowej.
Plan dopuszcza realizację wielu funkcji usługowych, m.in.:
• handel detaliczny
• gastronomia
• hotelarstwo
• obiekty biurowe
• obiekty konferencyjne i wystawiennicze
• rzemiosło usługowe
• usługi administracyjne, oświatowe czy zdrowotne (z wyłączeniem szpitali)
Dodatkowo dopuszczalna jest zabudowa mieszkaniowa związana z obsługą obiektu usługowego.
Parametry zabudowy (zgodnie z MPZP)
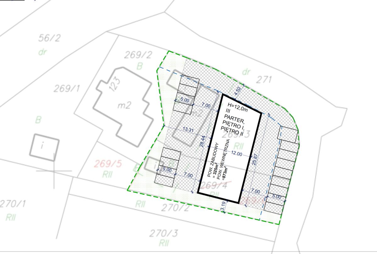
• maksymalna wysokość zabudowy: 12 m
• maksymalna powierzchnia zabudowy: do 60% działki
• minimalna powierzchnia biologicznie czynna: 40%
• maksymalna intensywność zabudowy: 1,5
Przy tych parametrach możliwa jest realizacja budynku o orientacyjnych parametrach:
• powierzchnia zabudowy: ok. 330-530 m²
• powierzchnia użytkowa: ok. 880-1400 m²
Przykładowe warianty zabudowy przedstawione są w materiałach graficznych dołączonych do oferty.

Lokalizacja i komunikacja
Nieruchomość znajduje się w bardzo dobrze skomunikowanym miejscu, zapewniającym szybki dostęp do Wieliczki, Niepołomic oraz Krakowa.
Odległości:
• 3 km - Rynek Górny w Wieliczce
• 8 km - granica Niepołomic
• 10 km - Rynek w Niepołomicach
• 700 m - droga krajowa nr 94 (dawna „czwórka”)
• 5,5 km - obwodnica Krakowa oraz autostrada A4 - węzeł Wielicka
• ok. 5 km - wjazd na autostradę A4 w Podłężu

Podsumowanie
Działka stanowi bardzo dobrą propozycję dla inwestora, który szuka miejsca pod realizację obiektu usługowego w lokalizacji o dużym potencjale biznesowym - przy ruchliwej drodze, w otoczeniu rozwijającej się zabudowy mieszkaniowej i z szybkim dojazdem do Krakowa.
Nieprawidłowy adres E-mail